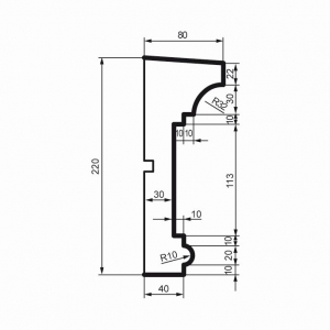
Молдинг MC 140

Размер: 220x80мм
Материал : ППС с твердым покрытием
Цена:
40.25 руб/м
Артикул: MC 140

Молдинг из полистирола с твердым покрытием.